Сдается коммерческая, 32 кв.м., 1/4 эт
| Арендная плата (Помесячно) | 24 000 |
|---|---|
| Цена кв.м. в год | 0 |
| Коммунальные услуги включены | Нет |
| Возможное назначение | Офис |
| Можно с детьми | Да |
| Можно с питомцами | Нет |
| Можно курить | Нет |
| Разрешены вечеринки | Нет |
| Отчетные документы | Есть |
| Тип здания | отдельно стоящее здание |
| Тип парковки | На улице |
| Вход cian (avito) | Общий с улицы |
| Тип аренды | Прямая |
| Ремонт | Офисная |
| Планировка cian | Кабинетная |
| Планировка avito | Кабинетная |
| Отделка помещения коммерческая | Офисная |
| Право собственности | Посредник |
| Залог (avito) | 1 месяц |
| Способ связи avito | По телефону и в сообщениях |
| Тип недвижимости (Гипернн) | Помещение |
| Состояние cian | Офисная отделка |
| Ремонт коммерческая | с отделкой |
| Тип отопления cian | Нет |
| Сет для YandexMarket | 5 |
| Тип дома cian | Железобетонные панели |
| Номер телефона для подключения функционала чатов. выгрузка | +79780548254 |
| Вариант задания цены (avito) - Аренда | в месяц |
| Тип коммерческой | Офисное помещение |
| Площадь, кв.м. | 32 |
| Этаж | 1 |
| Этажность | 4 |
| Класс здания | D |
| Населенный пункт | Севастополь |
|---|---|
| Улица | улица Летчиков |
НЕ АГЕНТСТВО! От собственника Юр. лицо!
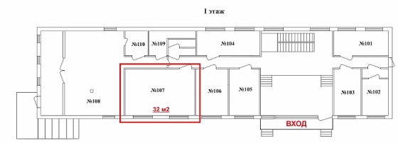
Сдается в аренду офисное помещение (кабинет) 32 м2.
Расположено помещение в офисном здании на ул. Летчиков 3-в (здание «Утюг»), рядом с Парком Победы.
Находится помещение на 1-м этаже 4-х этажного здания. Помещение светлое, общая площадь 32 м2, два окна, на окнах со стороны улицы установлены решетки. Помещение в хорошем состоянии, сделан косметический ремонт. В кабинете подведена холодная вода и канализация, для нагрева воды установлен бойлер, на окнах повешены жалюзи. Проведен интернет. Помещение сдается без мебели.
Санузел находится на этаже. Зимой работает собственная газовая котельная.
На территории имеется автопарковка, рядом остановка общественного транспорта «Парк Победы» и «Омега».







































